






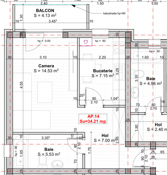
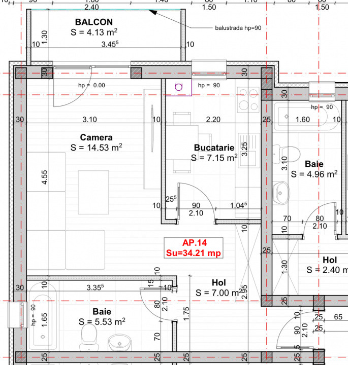
De vanzare, apartamente cu 1 camera, lucrate si finisate cu materiale de calitate superioara, constructie 2025, bloc cu regim de inaltime P+3E, situat in Grioc, cartierul Planetelor.
Apartamentele dispun de urmatoarea compartimentare: hol acces, bucatarie inchisa, baie cu geam si cada, camera cu acces la balcon.
Dotari imobil: tamplarie pvc tripan, incalzire in pardoseala/calorifere cu centrala proprie pe gaz, izolatie cu polistiren eps 80, constructie integral din caramida, loc de parcare inclus in pret.
Preturile de vanzare incep de la 64.000€
Va asteptam cu drag la o vizionare!
Detaliile tehnice au caracter informativ. Va asteptam cu drag la o vizionare!