






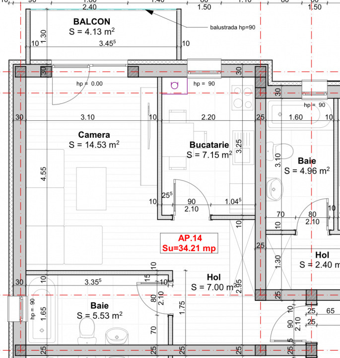
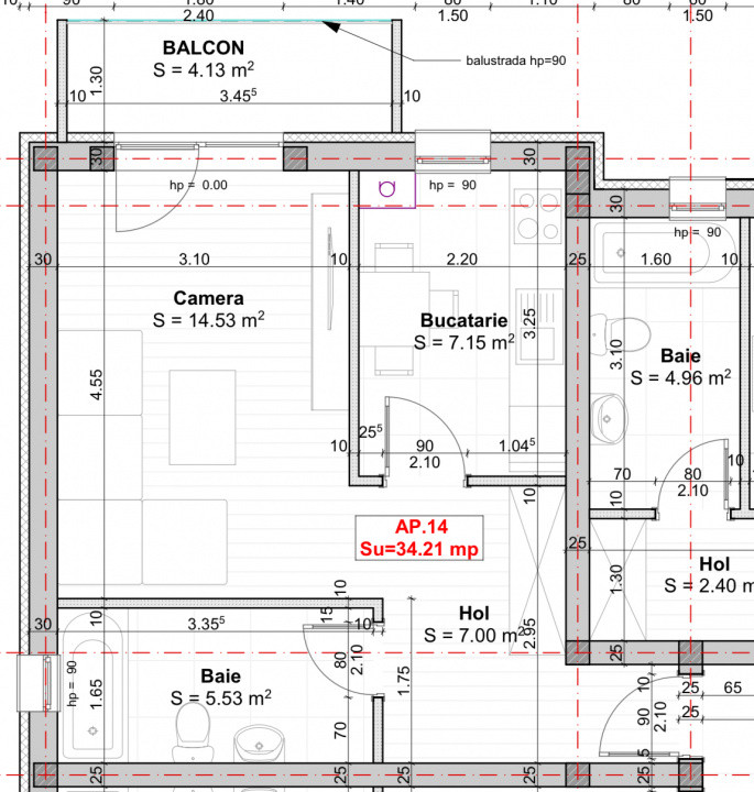
De vanzare, apartamente cu 1 camera, lucrate si finisate cu materiale de calitate superioara, constructie 2025, bloc cu regim de inaltime P+3E, situat in Grioc, cartierul Planetelor.
Apartamentele dispun de urmatoarea compartimentare: hol acces, bucatarie inchisa, baie cu geam si cada, camera cu acces la balcon.
Dotari imobil: tamplarie pvc tripan, incalzire in pardoseala/calorifere cu centrala proprie pe gaz, izolatie cu polistiren eps 80, constructie integral din caramida, loc de parcare inclus in pret.
Preturile de vanzare incep de la 64.000 Euro
Va asteptam cu drag la o vizionare!
Detaliile tehnice au caracter informativ. Va asteptam cu drag la o vizionare!