Boom Estate utilizează fişiere de tip cookie pentru a personaliza și îmbunătăți experiența ta pe Website-ul nostru. Înainte de a continua navigarea pe Website-ul nostru te rugăm să aloci timpul necesar pentru a citi și înțelege conținutul Politicii de Cookie. Prin continuarea navigării pe Website-ul nostru confirmi acceptarea utilizării fişierelor de tip cookie conform Politicii de Cookie.

De Neratat, Studio, Etaj 1

Mosnita Noua

53.000€
ID: P232847 98 TOP de vanzare

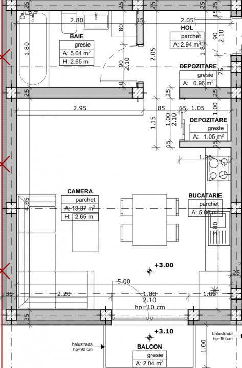
De vanzare apartamente cu o camera, cu predare la cheie, situate in Urseni, Mosnita Noua.

Suprafata utila: 34mp+ terasa;

Compartimentare: hol de acces, sufragerie cu iesire pe terasa, bucatarie open-space, baie, dressing.

Dotari imobil: centrala termica proprie, incalzire in pardoseala, tamplarie PVC tripan, acoperis tigla, loc de parcare inscris in CF.
Finisajele interioare sunt la alegerea cumparatorilor.

Pret de vanzare la cheie: 53.000 EUR

  • Nr. camere:1
  • S. utila:34.00 mp
  • S. construita:38.00 mp
  • Comp.:Decomandat
  • Confort:1
  • Etaj:Etaj 1
  • Nr. bucatarii:1
  • Nr. bai:1
  • Nr. parcari:1
  • An constructie:2025
  • Structura:Caramida
  • Tip imobil:Bloc
  • Regim inaltime:P+1
Utilitati
  • Utilitati generale: Curent, Apa, Canalizare, Gaz
  • Sistem incalzire: Centrala proprie, Incalzire pardoseala
Finisaje
  • Izolatii: Exterior
  • Pereti: Vopsea lavabila, Faianta
  • Podele: Parchet, Gresie
  • Stare: Finisat
  • Ferestre: PVC
  • Usa intrare: PVC
  • Usa interior: Lemn
Dotari
  • Spatii utile: Terasa, Dressing
  • Contorizare: Apometre, Contor gaz
  • Imobil: Acoperis

Flavius Ciocu

Broker Imobiliar

Contacteaza-ma

Flavius Ciocu

0756398828