





Va propunem spre vanzare apartamente cu 2 camere, lucrate si finisate cu materiale de calitate superioara, bloc constructie 2025, regim de inaltime P+2E+M, in Giroc, la limita cu cartierul BRAYTIM.
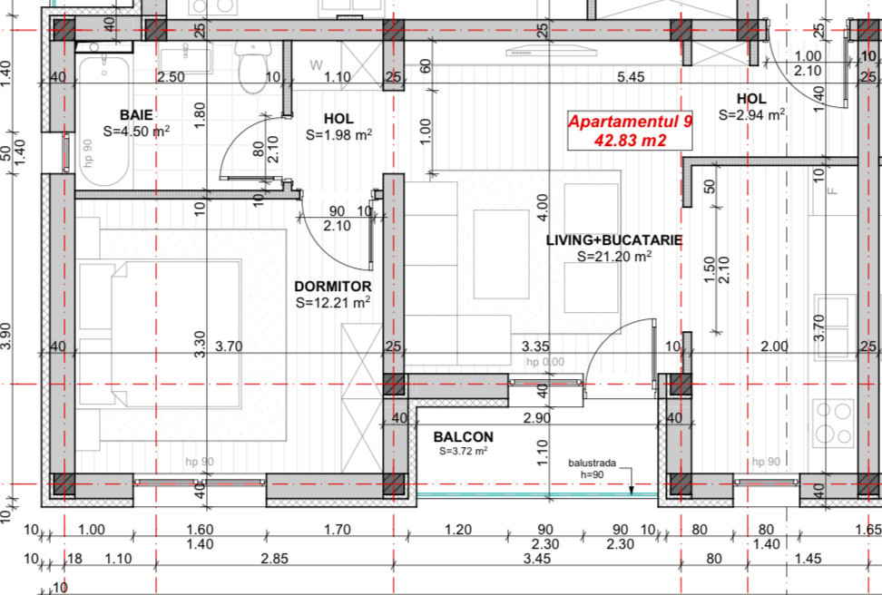
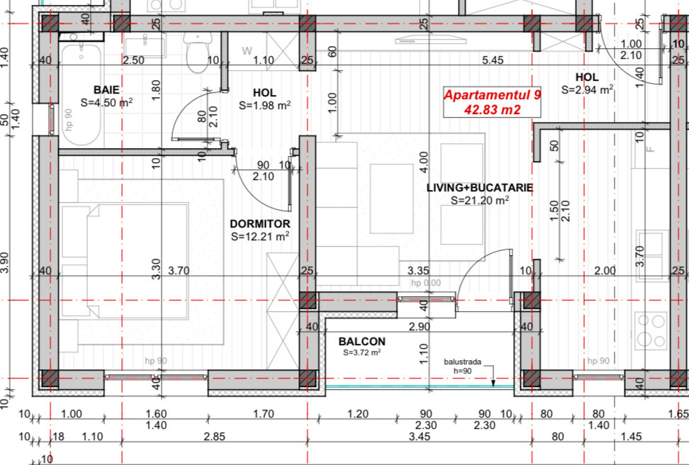
Apartamentele dispun de urmatoarea compartimentare: hol acces, living cu bucataria open space si acces la balcon, hol depozitare/loc pentru masina de spalat, baie cu cada si geam, dormitor.
Detalii tehnice: constructie integral din caramida, izolatie cu polistiren eps 80 de 10 cm, tamplarie pvc tripan, incalzire in pardoseala cu centrala proprie in condensatie.
Pretul de vanzare este de 79.500 EURO cu un loc de parcare inclus.
Va asteptam cu drag la o vizionare!