





De vanzare, apartamente cu 2 camere, lucrate si finisate cu materiale premum, bloc constructie noua 2026, situate pe Calea Urseni, regim de inaltime P+2E.
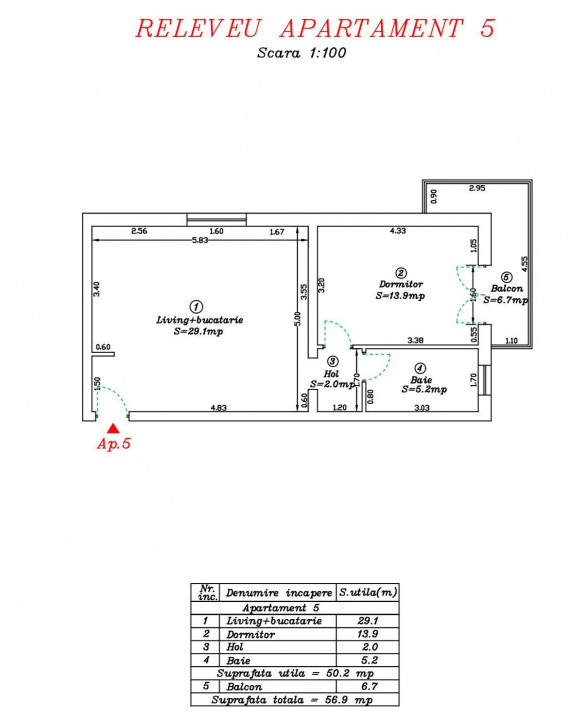
Apartamentele dispun de urmatoarea compartimentare: living open space cu bucataria si acces in balcon, baie cu geam, dormitor.
Detalii tehnice: constructie integral din caramida, izolatie eps 80 10 cm, tamplarie pvc tripan, incalzire in pardoseala cu centrala proprie in condensatie, loc de parcare inclus in pret.
Preturile incep de la 1850 Euro, TVA INCLUS.
Va asteptam cu drag la o vizionare!