





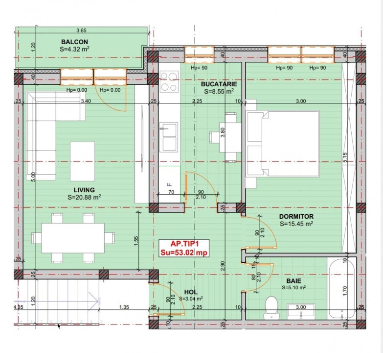
De vanzare, apartament decomandat, lucrat cu materiale de calitate, suprafata de 53 mp +5 mp balcon, situat la etajul 3/3, in Giroc, la asfalt.
Proprietatea are urmatoarea compartimentare: hol acces,living generos cu acces la balcon, bucatarie inchisa, dormitor cu dressing propriu, baie cu cada.
Detalii tehnice: constructie integral din caramida si izolata cu polistiren 10 cm eps 80, tamplarie PVC Tripan, incalzire in pardoseala cu centrala in condensatie pe gaz.
Apartamentul se preda finisat la cheie la pretul de 80.000 Euro la plata cash.
Pretul pentru plata cu credit este 85.000 Euro.
Datele tehnice au caracter informativ.
Va asteptam cu drag la o vizionare!