







Suntem bucurosi sa va prezentam spre vanzare un imobil cu 12 apartamente, lucrate si finisate cu materiale de calitate superioara, regim de inaltime P+3E, apartamente cu 2 camere si penthouse-uri, situate in Giroc, in spatele Hotelului IQ.
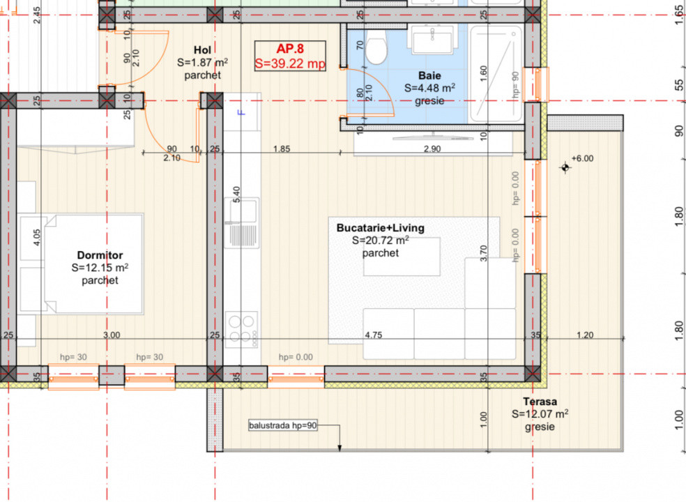
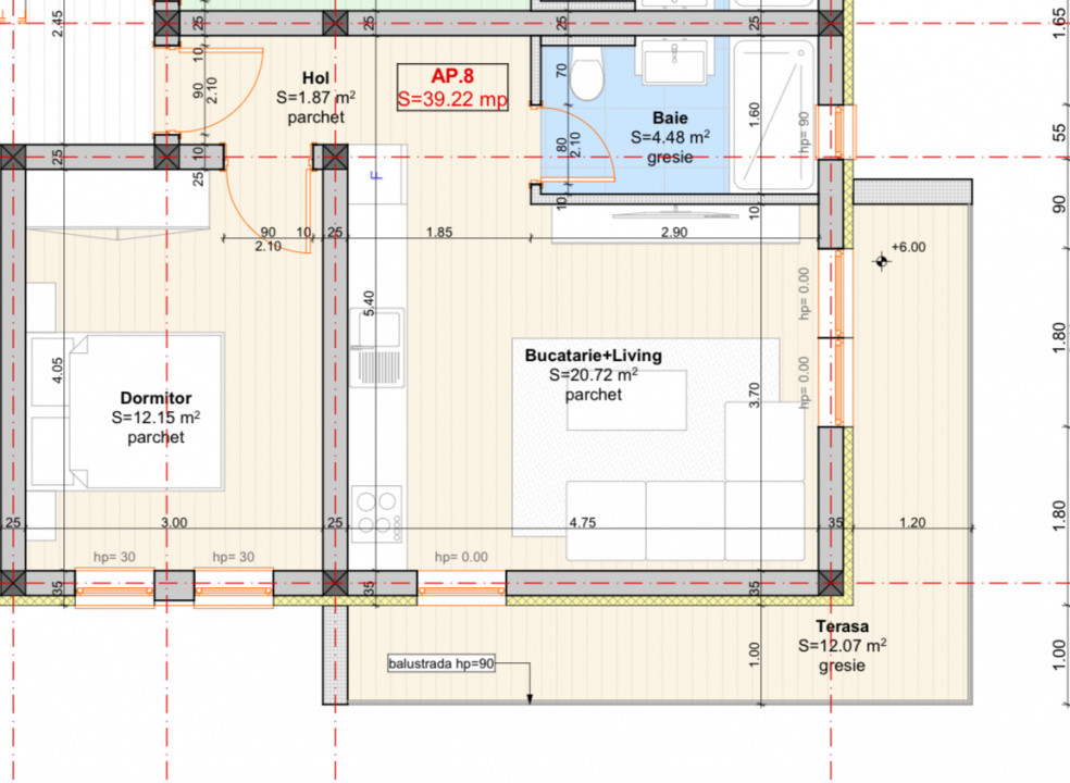
Apartamentele dispun de urmatoarea compartimentare: hol acces, dormitor, baie cu cada sau dus si geam, living open space cu bucataria si acces la terasa de 12 mp.
Dispunem si de alte modele de apartamente:
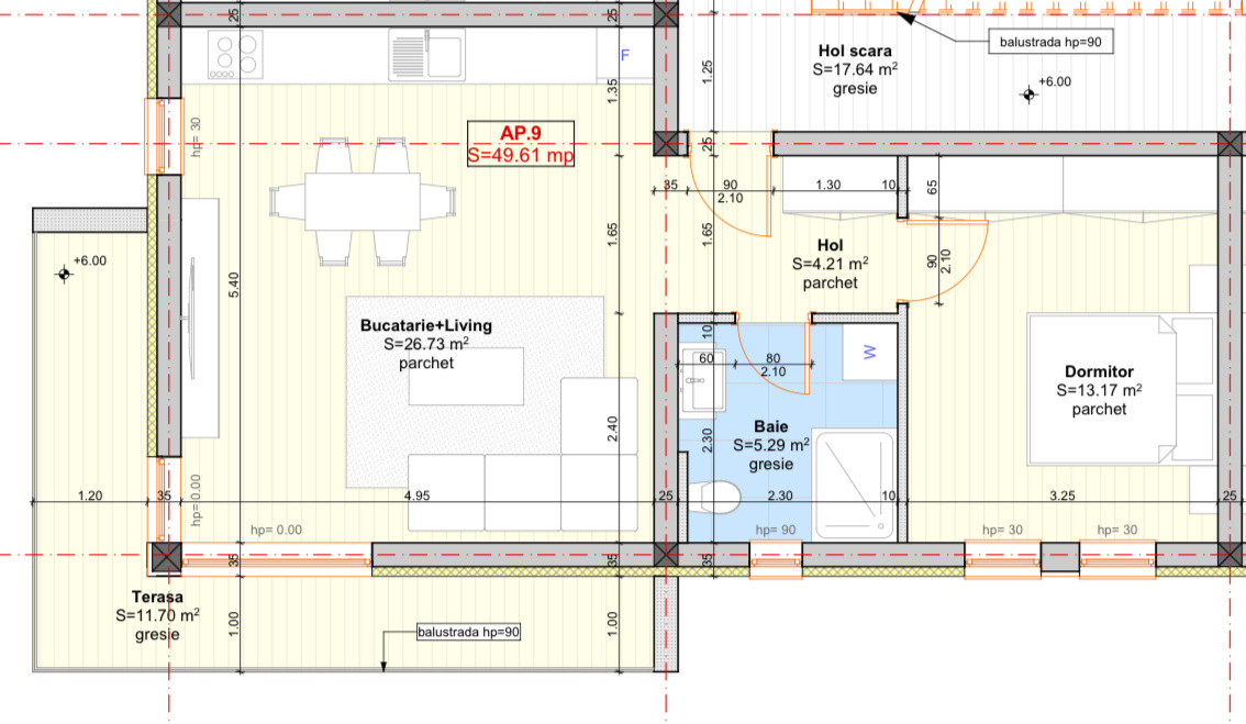
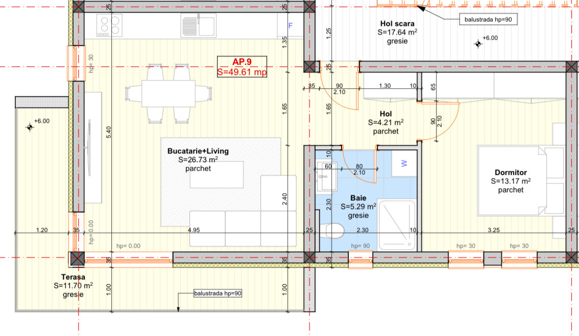
Apartament 50 mp la pretul de 110.000 Euro.
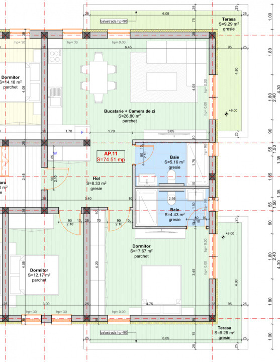
Apartament 75 mp cu 3 camere si 2 bai: 150.000 Euro.
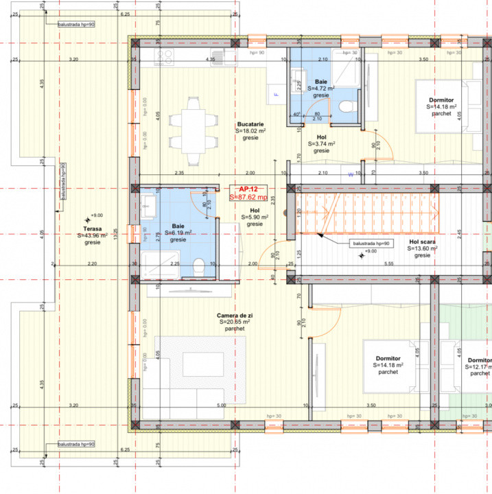
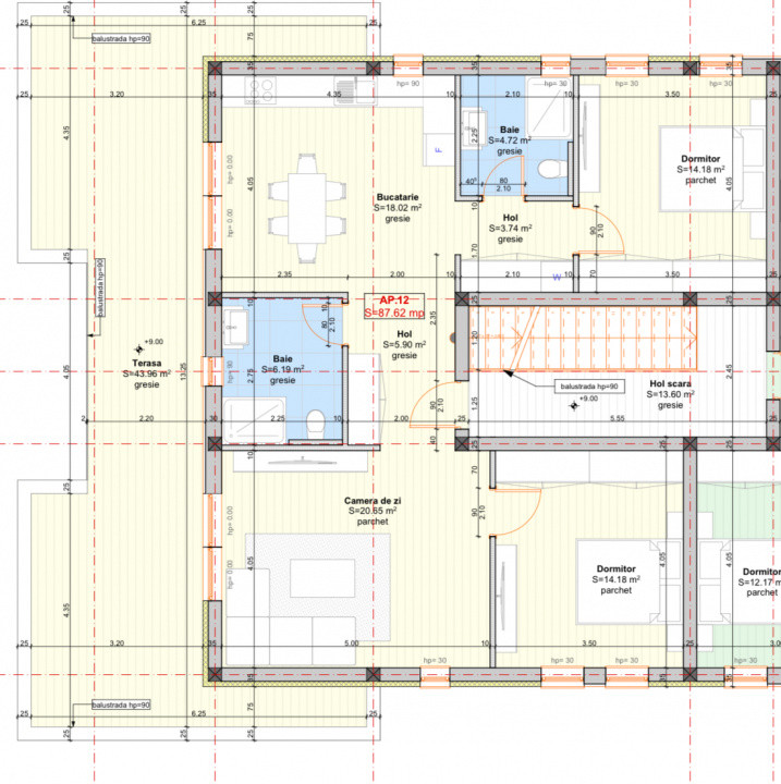
Apartament 87 mp cu 3 camere, 2 bai si terasa de 44 mp la 176.000 Euro.
Detalii tehnice: constructie din caramida, izolatie eps 80 din polistiren 10 cm, tamplarie pvc tripan, incalzire in pardoseala cu centrala proprie in condensatie, loc de parcare inclus in pret, exista posibilitatea personalizarii interioare in limita unui buget prestabilit.
Va asteptam cu drag la o vizionare!