












De vanzare apartament cu 2 camere, mobilat si utilat, model decomandat, situat la etajul 3, in Giroc, zona Neptun.
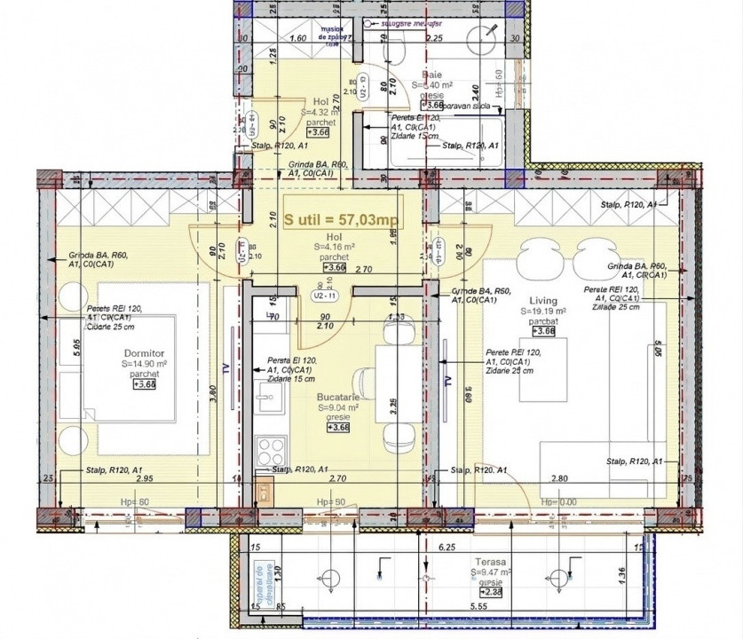
Suprafata utila: 57.03 mp + terasa
Compartimentare: hol de acces, living generos cu iesire pe terasa, bucatarie inchisa, dormitor, baie, spatiu de depozitare in pod.
Dotari imobil: centrala termica in condensatie Ferroli, incalzire in pardoseala, tamplarie PVC tripan, aparat de aer conditionat, videointerfon, loc de parcare inclus in CF.
Se vinde partial mobilat si utilat.
Pret de vanzare: 113.000 EUR