










Apartament de vânzare într-o clădire istorică emblematică cu o suprafata utila de 94,4 mp.
Situat în Palatul Ágoston Galgon (1911–1912), proiectat de arhitectul Jenö Klein în stil Secession (Art Nouveau), acest apartament reprezintă o investiție unică într-un imobil de patrimoniu cu valoare istorică și arhitecturală deosebită. Fațada spectaculoasă, cu elemente geometrizate, bovindouri și detalii artistice (basoreliefuri, mascaroane, finialul în formă de cocoș), transformă clădirea într-un reper vizual al orașului.
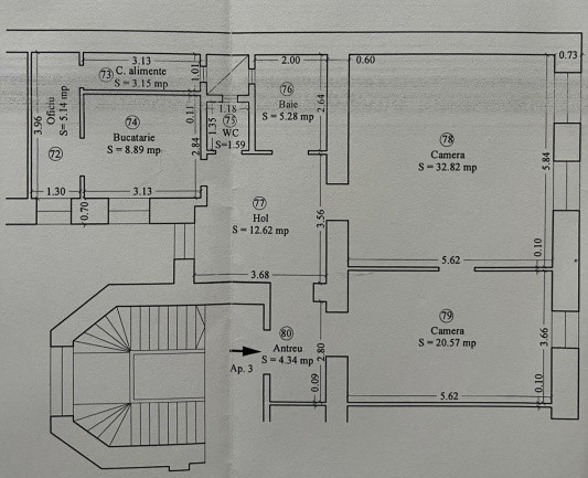
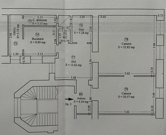
Compartimentare practică și confortabilă:
-living generos
-dormitor
-antreu spațios
-bucătărie
-cămară/spațiu tehnic
-baie (cu posibilitate de separare WC)
Apartamentul este recondiționat, parțial mobilat, cu instalația electrică complet refăcută.
Ideal pentru locuință elegantă sau investiție cu potențial excelent – amplasat central, într-un imobil cu notorietate, într-o zonă intens circulată și apreciată pentru turism, business și viață urbană.
PRET 335 990 EURO - COMISION 0%