



De vanzare, apartamente cu 3 camere, spatioase, lucrate si finisate cu materiale de calitate superioara, bloc cu doar 6 apartamente, constructie 2025 in Mosnita, strada Asfaltata, in apropiere de noul Lidl si Drumul Boilor.
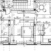
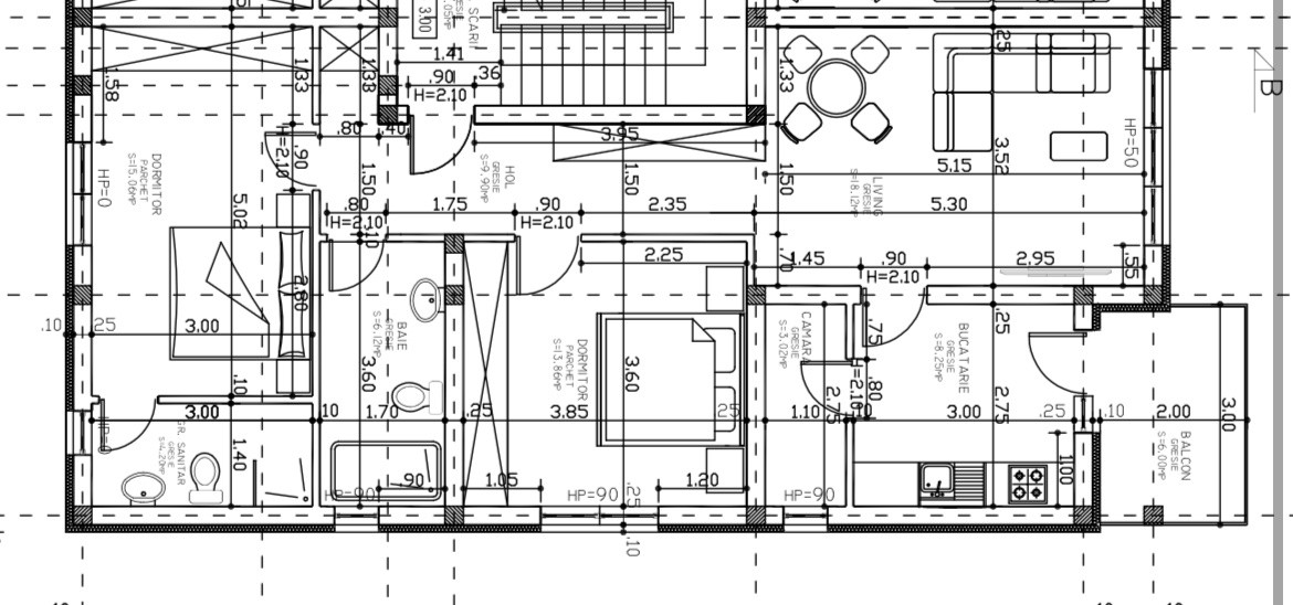
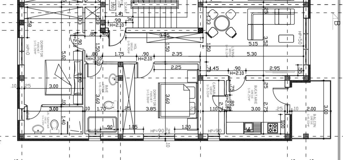
Apartamentele dispun de urmatoarea compartimentare: hol acces, dormitor matrimonial cu baie proprie, baie cu cada, dormitor 2, living generos, bucatarie inchisa cu camara.
Detalii tehnice: constructie integral din caramida, izolatie cu polistiren eps 80 10 cm, tamplarie pvc tripan, incalzire in pardoseala cu centrala proprie in condensatie.
Preturile apartamentelor sunt in functie de etaj:
Parter: 75 mp utili+ balcon 6,6 mp + 139 mp gradina la pretul de 132.000 Euro + TVA
Etaj 1: 80 mp utili si balcon de 6,6 mp la pretul de 129.000 Euro + TVA
Etaj 2: 80 mp utili si balcon de 6,6 mp la pretul de 124.000 Euro+ TVA
Finisajele interioare pot fi alese in limita unui buget!
Va asteptam cu drag la o vizionare!