





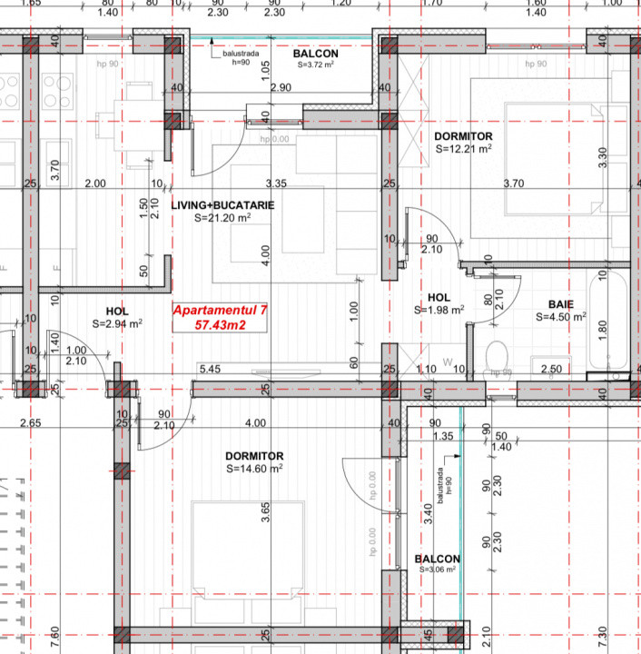
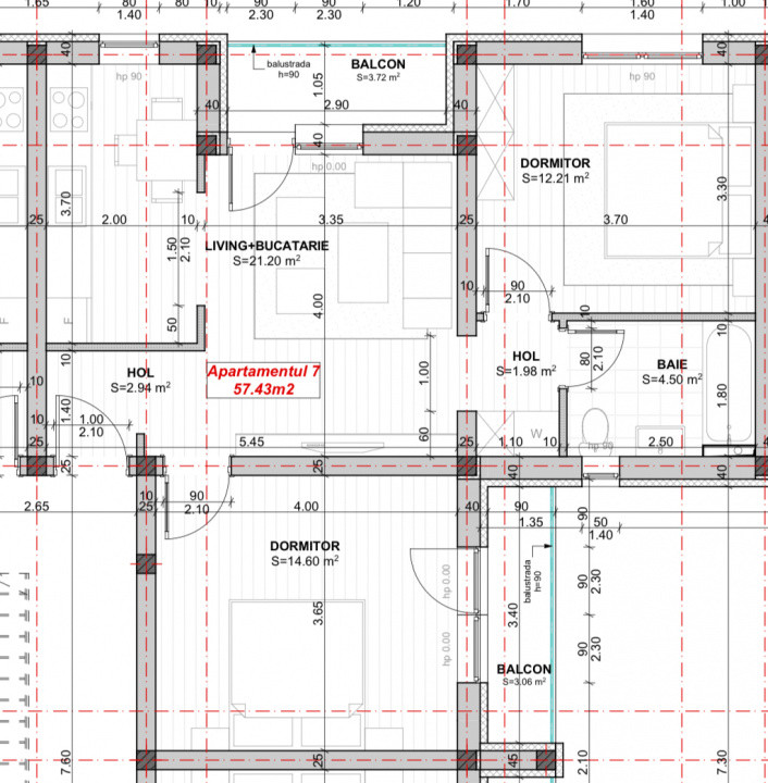
DE VANZARE, APARTAMENTE CU 3 CAMERE, 58 MP SI 2 BALCOANE, SITUATE IN GIROC, BLOC CU 2 ETAJE SI MANSARDA.
Apartamentele dispun de urmatoarea compartimentare: hol acces, living cu bucataria open space cu posibilitate de a fi inchisa, 2 dormitoare din care unul este cu balcon propriu si baie cu geam.
Detalii tehnice: constructie integral din caramida, izolatie cu polistiren 10 cm eps 80, tamplarie tripan, incalzire in pardoseala, loc de parcare inclus in pret.
Pretul de vanzare este de 101.000 Euro.
Pozele sunt cu caracter informativ de la contructii finalizate de noi!
Termen finalizare: februarie 2025
Va asteptam cu drag la o vizionare!