







Descoperă un apartament spațios și modern, situat într-o zonă în plină dezvoltare – Moșnița Nouă, pe Drumul Boilor, la doar 500 m de noul Lidl și cu acces rapid către Timișoara.
🏠 Detalii apartament:
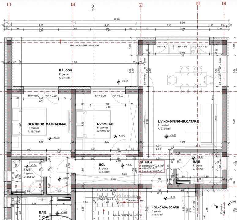
Suprafață utilă: 74 mp
Compartimentare eficientă: 2 dormitoare, 2 băi, living open-space cu bucătărie
Terasă generoasă de 10 mp
2 locuri de parcare incluse in pret
Finisaje la alegerea cumpărătorului – personalizează-ți locuința după propriul stil
📍 Locație și avantaje:
Stradă asfaltată – Drumul Boilor, zonă liniștită și ușor accesibilă
500 m de noul Lidl Moșnița Nouă
Stație de autobuz la doar 200 m
Acces rapid spre Timișoara și principalele puncte de interes
Ideal pentru cei care își doresc o locuință modernă, luminoasă și confortabilă, într-o zonă verde și bine conectată la oraș.
PRET 134 000 EURO -COMISION 0%
APARTAMENT ETAJ 1 73MP UTILI 134 000 EURO
APARTAMENT PARTER 61 MP UTILI+ CURTE 50 MP - 119 000 EURO