







De vanzare jumatate de duplex, cu predare la cheie, cu regim de inaltime Parter+Pod, situata in sat Albina.
Suprafata utila: 55 mp+ terasa;
Suprafata teren: 250 mp.
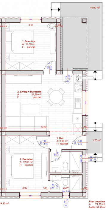
Compartimentare: hol de acces, living cu iesire pe o terasa acoperita, bucatarie open-space, dormitor matrimonial cu baie proprie, dormitor, baie, acces in pod.
Dotari imobil: zid despartitor dublu, zidarie din caramida, centrala termica proprie Ariston, incalzire in pardoseala, tamplarie PVC tripan.
Finisajele interioare sunt la alegerea cumparatorilor.
Pret de vanzare la cheie: 107.000 EUR.