








Vă propunem spre vânzare un duplex modern, situat în Moșnița Nouă, într-o zonă liniștită, cu acces rapid către Timișoara – ideal pentru locuire confortabilă, departe de agitația orașului.
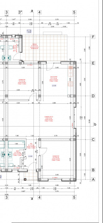
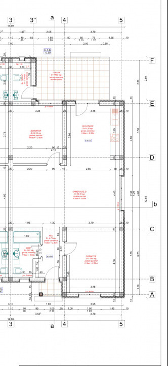
📐 Caracteristici principale:
Suprafață utilă: 80 mp
Suprafață teren: 325 mp
Regim: Parter + Pod înalt
🧱 Construcție & dotări:
Construcție din cărămidă de 25 cm
Zid despărțitor izolat fonic
Izolație exterioară 10 cm
Tâmplărie PVC tripan
Toate utilitățile disponibile: Curent, Apă, Gaz, Canalizare, Iluminat stradal, Fibra optică
🏠 Compartimentare:
Parterul este compartimentat eficient, oferind un spațiu optim pentru locuit.
🔝 Avantaj major:
Pod înălțat ce oferă aproximativ 50 mp utili, cu înălțime de peste 2 metri
👉 Ideal pentru amenajare ulterioară: dormitoare suplimentare, birou, spațiu de relaxare sau depozitare.
🎨 Finisaje:
Imobilul se predă la cheie
Finisajele sunt la alegerea cumpărătorului – posibilitatea de personalizare completă după propriul gust
💰 Preț: 154.000 €- COMISION 0%
📞 Pentru mai multe detalii sau programarea unei vizionări, nu ezitați să ne contactați!