





De vanzare jumatate de duplex, cu predare la cheie, cu regim de inaltime Parter+Etaj+Pod, cu dublu front stradal, situata in Mosnita Veche, cu acces rapid la Drumul Boilor.
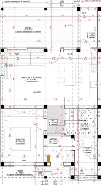
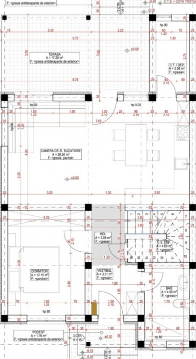
Suprafata utila: 110 mp+ 18 mp terasa;
Suprafata teren: 370 mp.
Compartimentare:
- parter: hol de acces, living generos cu iesire pe terasa, bucatarie open-space, dormitor, baie, camera tehnica, spatiu pentru depozitare;
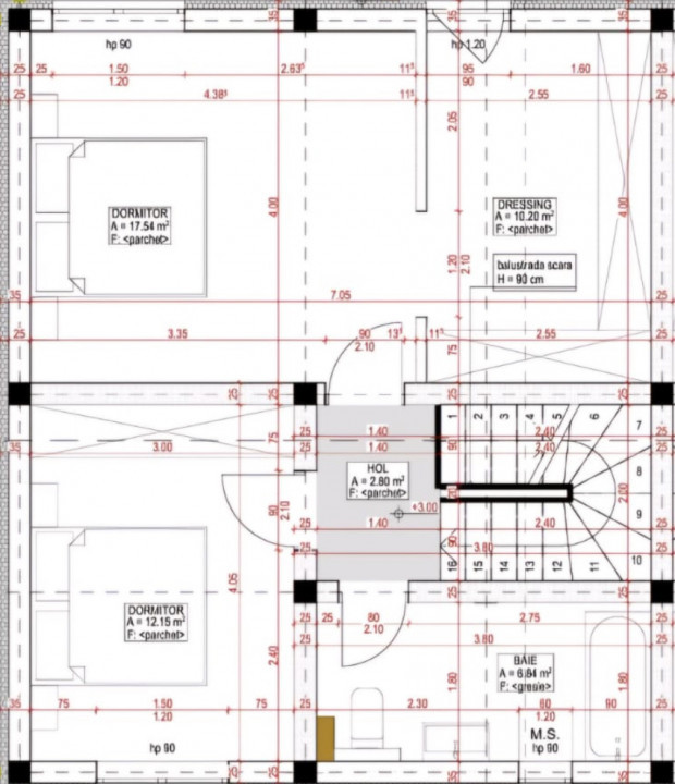
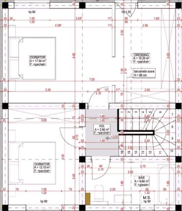
- etaj: dormitor matrimonial cu dressing, dormitor, baie, acces in pod.
Dotari imobil: zidarie din caramida, izolatie exterioara cu polistiren de 10 cm, acoperis din tigla, tamplarie PVC tripan, incalzire in pardoseala, centrala termica proprie, alei din beton amprentat, gard zidit din boltari.
Finisajele interioare sunt la alegerea cumparatorilor.
Pret de vanzare:
- 189.000 EUR, pentru unitatea cu teren de 307 mp;
- 195.000 EUR, pentru unitatea cu teren de 370 mp.