













🏡 DUPLEX MODERN DE VÂNZARE – 96 MP UTILI, TEREN 348 MP 🏡
📍 Locație ideală, liniște și confort!
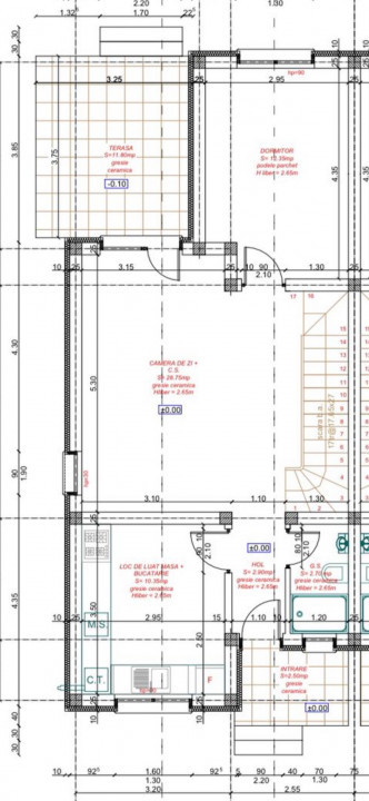
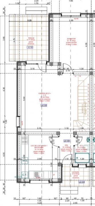
✅ 3 dormitoare
✅ 2 băi
✅ Bucătărie închisă
🔹Utilitati: apa, gaz, curent trifazic, fosa septica ecologica
🔹 Construcție solidă: cărămidă 25 cm + izolație polistiren 10 cm
🔹 Confort termic: încălzire în pardoseală + termostate ambient
🔹 Eficiență energetică: geamuri tripan Salamander
🔹 Durabilitate: placă de beton peste etaj, acces pod
🔹 Curtea se amenajează cu copaci ornamentali și sistem de drenaj pentru apa pluvială
💰 Preț: 149.999 €
📞 Sună acum pentru detalii și vizionare!