








De vanzare jumatate de duplex, cu predare la cheie, cu regim de inaltime Parter+Pod, situata in Mosnita Noua, cu acces rapid la 4 benzi.
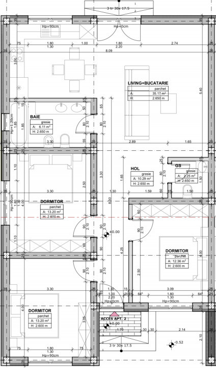
Suprafata utila: 93 mp;
Suprafata teren: 350 mp.
Compartimentare: hol de acces, living generos, bucatarie open-space, cu posibilitate de inchidere, 3 dormitoare, 2 bai, acces in pod.
Dotari imobil: centrala termica proprie, incalzire in pardoseala, tamplarie PVC, zidarie din caramida, izolatie exterioara cu polistiren de 10 cm, acoperis din tigla, alei si parcaj auto din beton amprentat.
Finisajele interioare sunt la alegerea cumparatorilor.
Pozele cu finisajele interioare sunt preluate de la ultimul imobil finalizat!
Pret de vanzare la cheie:
- 140.000 EUR, plata integral din surse proprii;
- 148.000 EUR, plata prin credit ipotecar.