













Descoperă confortul unui nou început într-un duplex modern, amplasat pe Calea Medveș.
Locuința este construită în 2025 și oferă un design contemporan, finisaje premium și o compartimentare perfect gândită pentru o familie.
🔹 Caracteristici principale:
Suprafață utilă: 117 mp + terasă de 20 mp + pod generos pentru depozitare
Teren: 255 mp – curte amenajată complet cu gazon și pavaj
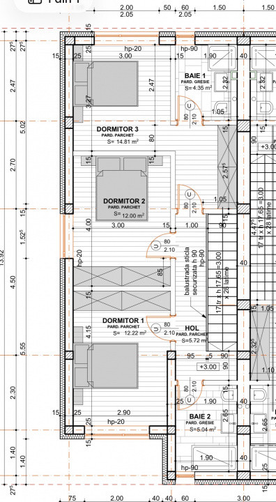
Compartimentare:
Parter: living spațios cu bucătărie open-space, baie, cameră tehnică
Etaj: 3 dormitoare, dintre care unul matrimonial cu baie proprie, plus baie suplimentară
🔹 Detalii tehnice și dotări:
Construcție nouă, finalizată în 2025
Izolație termică performantă: polistiren de 10 cm pe fațadă și spumă poliuretanică la pod
Pereți de 50 cm + casa scării pentru confort fonic excelent
Geamuri mari pentru lumină naturală abundentă
Curent trifazic, apă, canalizare, gaz, fibră optică si asfalt
Poartă auto automatizată
Pregătire pentru panouri fotovoltaice
Predare la cheie, cu posibilitatea alegerii finisajelor în cadrul unui buget generos
PRET 188 999 EURO- COMISION 0%