











Îți prezentăm o locuință spațioasă și foarte bine echipată, situată într-o zonă liniștită din Moșnița Nouă , ideală pentru o familie care își dorește confort si intimitate.
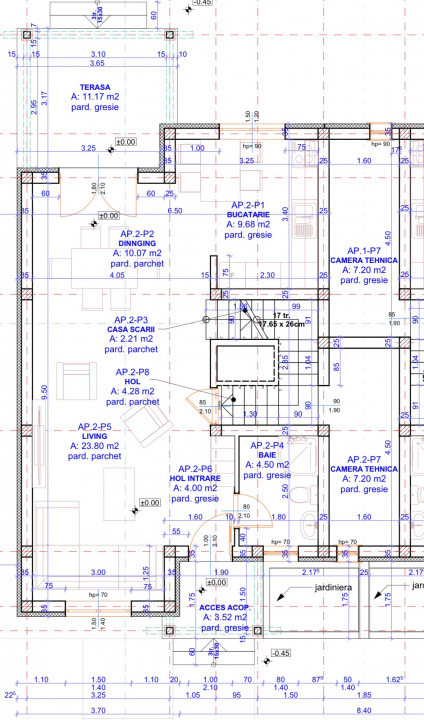
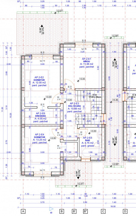
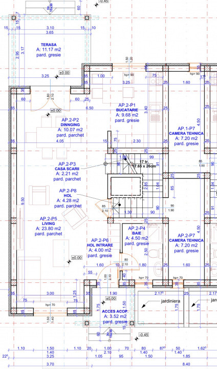
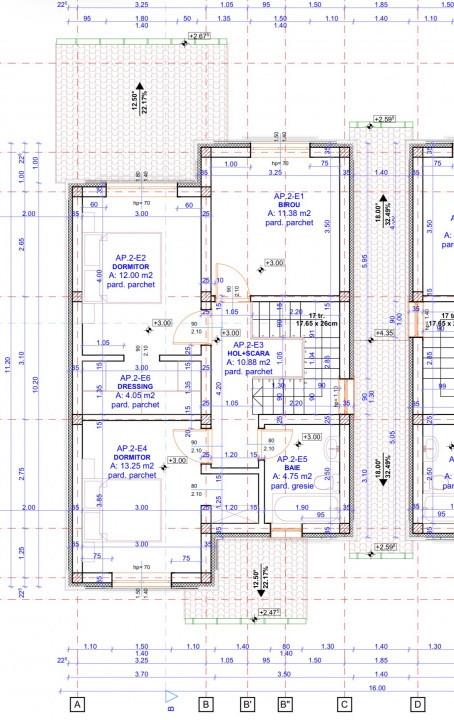
📐 Suprafață utilă: 123 mp
🌿 Suprafață teren: 350 mp – curte generoasă, ușor de amenajat
🛏️ Compartimentare excelentă:
• 4 camere ( 3 dormitoare+ living+ spatiu tehnic )
• 2 băi
⚙️ Utilități: curent, apă, canalizare , iluminat stradal, fibra optica.
🧱 Dotări și avantaje :
• Încălzire în pardoseală
• Izolație exterioară de 10 cm
• Tâmplărie PVC tripan
• Alee din pavaj
•Despartit prin CT
TERMEN DE FINALIZARE LUNA APRILIE.
📍 Localizare: zonă liniștită, ideală pentru locuit, cu acces facil către Timișoara
💰 Preț: 186 999 €.