
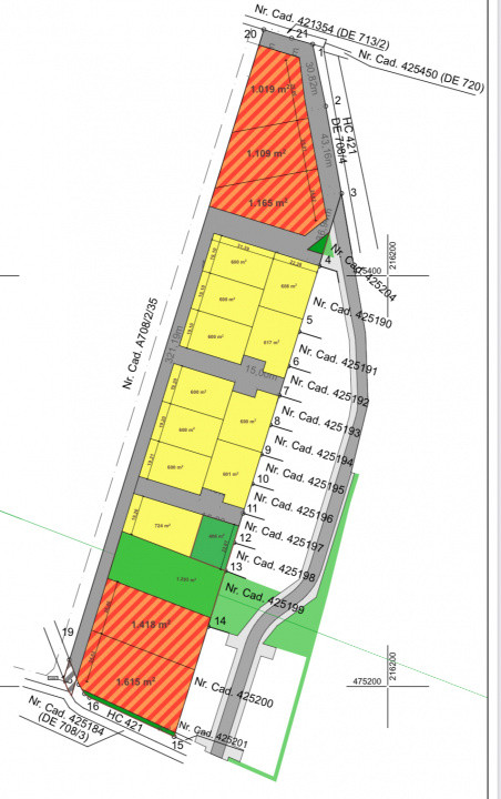
Vă oferim spre vânzare un ansamblu de terenuri, ideale pentru construcția unei locuințe sau pentru investiție, situate în Moșnița Nouă, o zonă aflată în continuă dezvoltare, cu acces facil către artera principală.
Majoritatea parcelelor au o suprafață de aproximativ 600 mp, oferind spațiul perfect pentru realizarea unei locuințe moderne, cu curte generoasă sau imobil de tip duplex.
Prețuri promoționale:
37.425 € + TVA – pentru plata integrală (cash)
49.900 € + TVA – pentru plata în tranșe
Utilități:
Toate utilitățile (apă, canalizare, gaz, curent) vor fi disponibile până în iulie 2027.
Avantaje:
Locație excelentă, cu acces rapid la strada principală
Zonă în plină dezvoltare, cu potențial ridicat de creștere a valorii
Parcelare optimă pentru construcții rezidențiale
Ideal atât pentru locuință proprie, cât și pentru investiție
Aceste terenuri reprezintă o oportunitate excelentă de a construi într-o zonă liniștită, dar bine conectată, la un preț avantajos.
Pentru mai multe informații sau pentru rezervarea unei parcele, vă stăm la dispoziție!