



Vă propunem spre vânzare un teren cu potențial excelent de dezvoltare, situat în Moșnița Nouă, într-o zonă în plină expansiune, cu acces facil către artera principală.
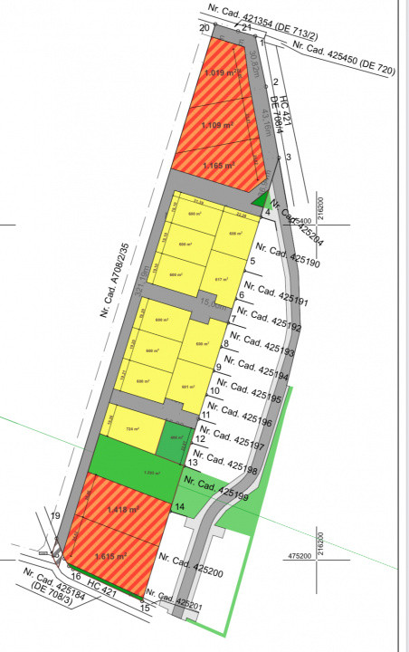
Terenul are o suprafață generoasă de 1019 mp și oferă oportunitatea dezvoltării unui proiect rezidențial modern, cu posibilitatea construirii unui imobil de aproximativ 10 apartamente.
Caracteristici:
Suprafață teren: 1019 mp
Deschidere generoasă și formă optimă pentru construcție
Acces facil la drum principal
Utilități:
Toate utilitățile (apă, canalizare, gaz, curent) vor fi disponibile până în iulie 2027.
Avantaje:
Zonă în continuă dezvoltare, cu cerere crescută pentru locuințe noi
Potențial investițional ridicat
Ideal pentru dezvoltatori imobiliari
Acces rapid către oraș și puncte de interes
Acest teren reprezintă o oportunitate excelentă pentru dezvoltarea unui proiect rezidențial modern, într-o locație cu perspectivă de creștere.
Pretul terenului este de 93.750 + TVA la plata integrala.
pretul terenului este de 125.000 + TVA la plata transe.
Pentru detalii suplimentare sau stabilirea unei întâlniri, vă invităm să ne contactați!