









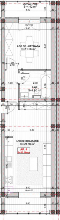
Va propunem spre vanzare, un apartament cu 2 camere, 51 mp utili, lucrat si finisat cu materiale de calitate superioara, bloc constructie 2025 P+3E, situat in Giroc, Cartierul Planetelor, in proximitatea hotelului IQ.
Apartamentul dispune de urmatoarea compartimentare: hol acces, living open space cu bucataria si balcon inchis, baie cu dus si loc pentru masina de spalat, dormitor cu balcon inchis.
Detalii tehnice: constructie din caramida si izolatie cu polistiren eps 80, tamplarie pvc tripan, incalzire in pardoseala cu centrala proprie pe gaz, loc de parcare inclus in pret.
Pretul de vanzare este de 84.500 Euro.
Va asteptam cu drag la o vizionare!