










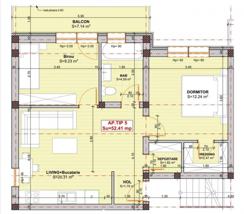
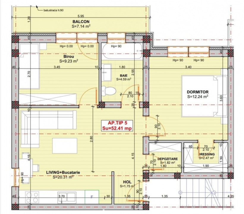
Va propunem spre vanzare, apartamente cu 2 si 3 camere, compartimentari ideale, suprafete de 53 si 54 mp+ balcoane de 7 mp, bloc constructie 2025, P+3E, situat in localitatea Giroc, la asfalt.
Apartamentele dispun de urmatoarea compartimentare: hol acces, spatiu depozitare, living open space cu bucataria, dormitor matrimonial cu dressing propriu, birou cu acces la balcon.
Detalii tehnice: constructie integral din caramida si izolatie 10 cm eps 80, tamplarie tripan Salamander, incalzire in pardoseala cu centrala proprie in condensatie, interfon si loc de parcare inclus in pret.
Preturile incep de la 85.000 Euro, pentru etaj 3.
Preturile incep de la 88.000 Euro, pentru etaj 2.
Apartamentele se predau la cheie, fara mobilier, pozele sunt cu titlu informativ de la un apartament identic si mobilat!
Termen finalizare: iunie 2026.
Va asteptam la o vizionare!