
















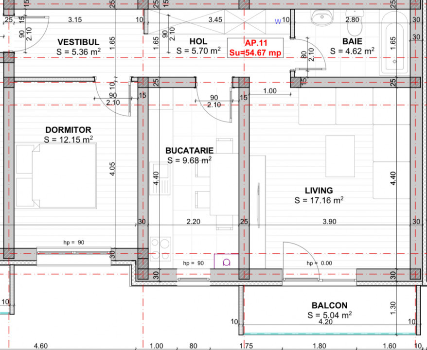
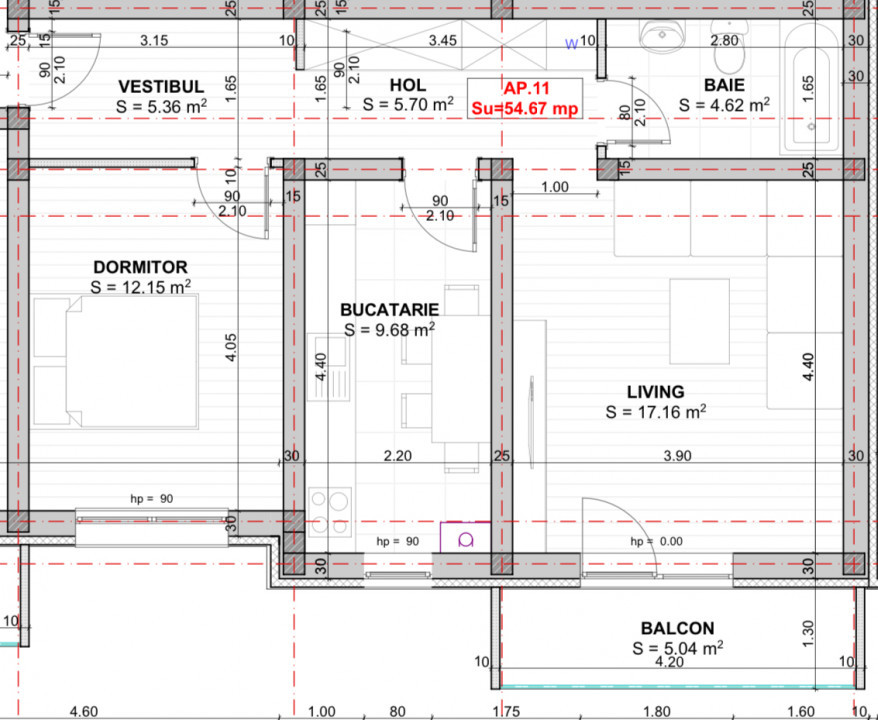
Va propunem spre vanzare apartamente cu 2 camere, suprafete utile intre 54-55 mp, lucrate si finisate cu materiale de calitate superioara, bloc nou cu regim de inaltime P+3E, situat in Giroc, zona Planetelor.
Apartamentele dispun de urmatoarea compartimentare: hol acces, baie cu cada si geam, bucatarie inchisa, living cu acces la balcon, dormitor generos.
Dotari imobil: constructie integral din caramida, izolatie cu polistiren 10 cm, tamplarie pvc tripan, incalzire pe calorifere cu centrala proprie pe gaz, loc de parcare inclus in pret.
Preturile incep de la 89.600 Euro.
Va asteptam cu drag la o vizionare!