




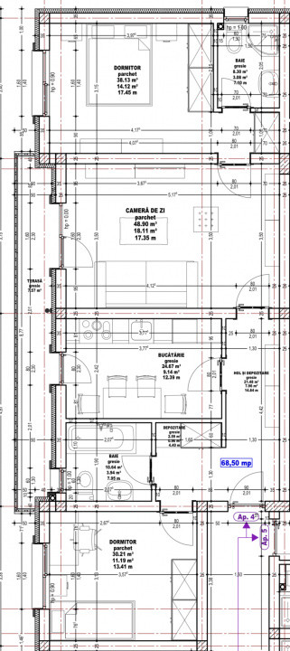
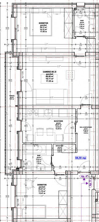
Va propunem spre vanzare apartamente cu 2 si 3 camere, suprafete intre 52 si 75 mp, lucrate cu materiale de calitate, situate intr-un bloc cu 3 etaje, in zona Calea Urseni.
Apartamentele cu 3 camere dispun de urmatoarea compartimentare: hol acces, dormitor, baie cu cada si geam, bucatarie inchisa, living generos cu acces la balcon, dormitor matrimonial cu baie proprie.
Detalii tehnice: tamplarie pvc tripan, constructie din caramida Porotherm, izolatie cu polistiren 10 cm eps 80, incalzire in pardoseala cu centrala proprie in condensatie.
Pretul de vanzare pentru apartamentul cu 3 camere este de 102.000 Euro.
Se accepta doar plata Cash!
Va asteptam cu drag la o vizionare!